h residence

friendswood texas

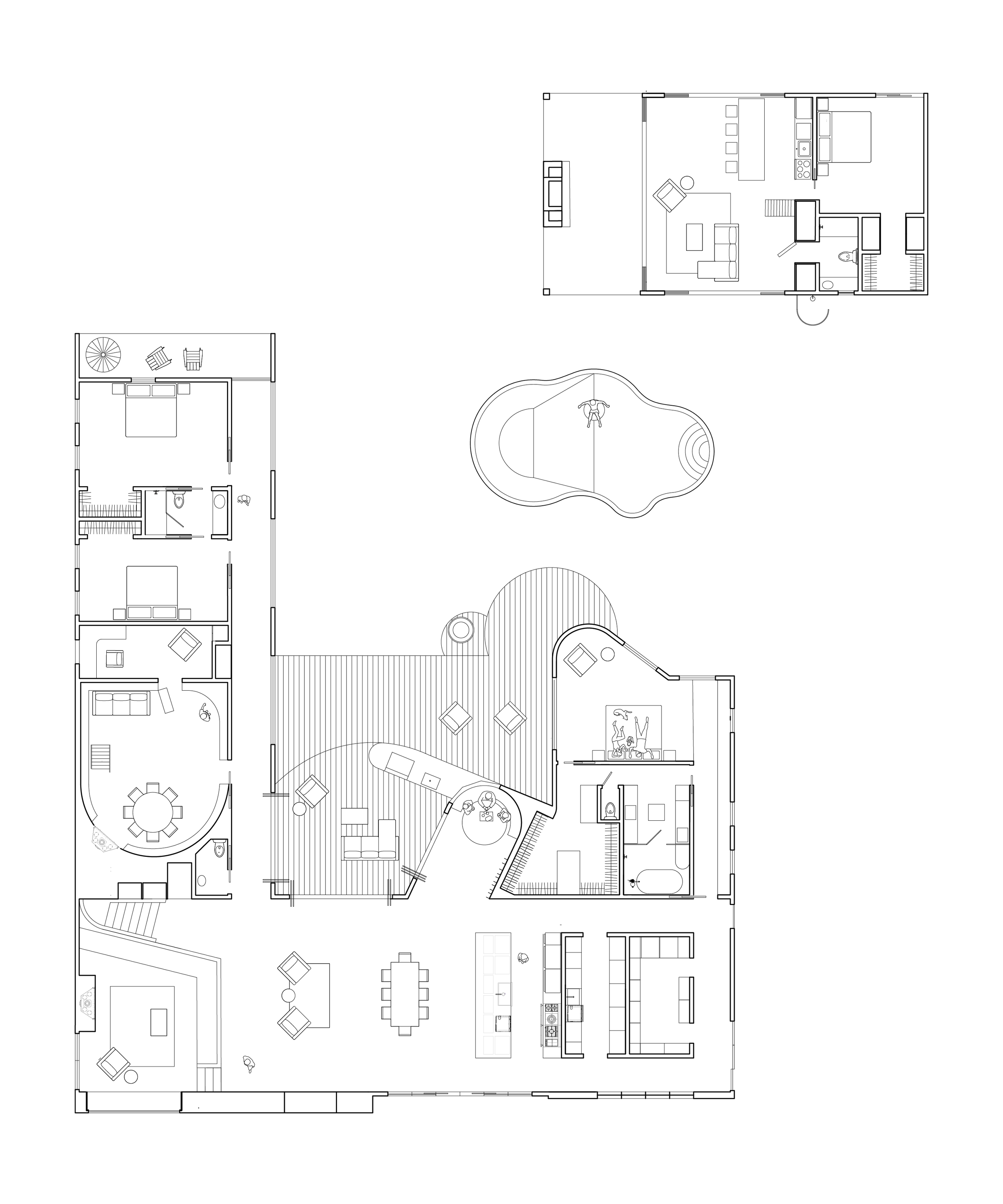
new house on existing orchard composed of main living space, pool house, and two garage structures.  the house features large glass openings and shaped skylight scoops to connect with surrounding landscape.  the organization allows the home to switch between owenrs wing to being fully inhabitated when children  visit and then additional house for extened family.

Previous
Previous

Next
Next